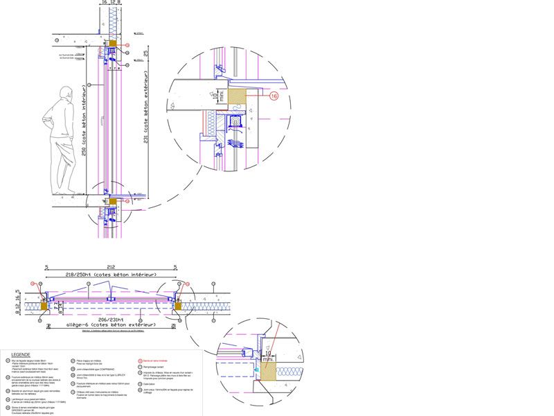
Les portes-fenêtres et pré-cadres

 

Les portes-fenêtres : (Illustration)

porte_fenetre_1.jpg

 

 

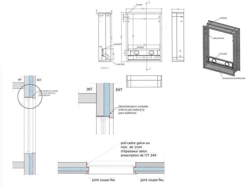
Autres solutions pour les fenêtres et porte-fenêtres:

  • Les pré-cadres : (Illustrations)

precadre-site.jpg